Sold

3, 59 Hargrave Street, Paddington

SOLD

2 1 1 113 m2

MORE LIKE A SEMI + CAR SPACE

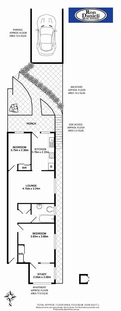
Attention semi buyers, large sun filled 2.5 elevated strata unit with harbour views. Located in a small block of 6 & close to transport, shops & buzzing Oxford St Cafes etc. 2 bedrooms with built in robes, separate office or study, spacious lounge room, functional eat in kitchen with dishwasher which leads to a rear undercover porch & sunny rear paved court yard. Tiled bathroom with bath & internal laundry. High ornate ceilings & plantation shutters. Car space with direct rear entry to the unit. Lock up storage. Sunny N/E aspect. Security building. Pet friendly.
Strata levies: $1031.25 per qtr
Water rates: $162.60 per qtr
Council rates: $261.63 per qtr
Size total: 113 sqm

Features

Balcony Courtyard Outdoor entertainment area Fenced
2 1 1 113 m2

Details

Address 3, 59 Hargrave Street, Paddington
Price SOLD
Property Type Residential
Property ID 1040
Category Unit
Land Area 113 m2

Tools

Share This Property